På en stille, lukket vej i et roligt kvarter på Sydamager finder du dette enestående etplans rækkehus, som de nuværende ejere har forvandlet til et arkitektonisk og stilistisk mesterværk. Udefra fremstår huset diskret – men så snart du træder indenfor, mødes du af et hjem, der oser af karakter, kvalitet og gennemtænkt design.
Ejendommen, som oprindeligt er opført i 1960, er totalrenoveret med respekt for husets oprindelige sjæl. De dygtige ejere har formået at skabe en moderne og funktionel bolig, hvor materialevalg, lys og rumfornemmelse går op i en højere enhed. Resultatet er et “no-nonsense” hjem, hvor alt plads er udnyttet optimalt, og hvor der er skabt en naturlig sammenhæng mellem inde og ude.
Den store sydvendte facade med gulv-til-loft vinduer inviterer lyset indenfor og giver en smuk forbindelse til haven. Huset har gulvvarme overalt, og den åbne planløsning giver en behagelig følelse af luft og rummelighed.
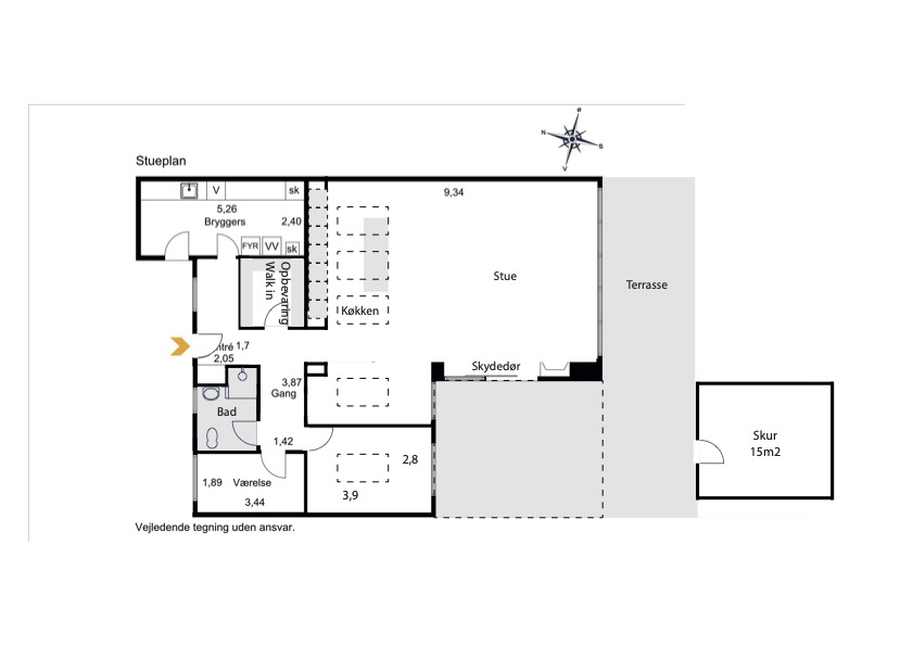
Boligens indretning:
Du træder ind i en indbydende entré med garderobeplads, der leder videre til et praktisk walk-in og et velindrettet bryggers. Det store køkken-alrum og stueområde udgør hjemmets hjerte – et imponerende rum med loft til kip, synlige bjælker og fjernbetjente Velux-vinduer. Det håndlavede snedkerkøkken fremstår elegant med lækre materialer og et eksklusivt, minimalistisk udtryk. En moderne brændeovn i mørkebrune mursten tilfører varme og stemning, mens travertin-detaljer og naturlige farver skaber ro og balance.
Derudover rummer huset et stilrent brusebadeværelse, et børneværelse med indbyggede skabe samt et stort soveværelse med ovenlysvindue og direkte udgang til terrassen.
Anneks og uderum:
Fra soveværelset fører terrassen over til et rummeligt anneks, perfekt som hjemmekontor, teenageafdeling, gæsteværelse eller klinik. Huset og annekset er forbundet af en stor træterrasse, som sammen med den ugenerede have skaber et privat frirum med masser af plads til afslapning og socialt samvær.
Beliggenheden:
Placeringen er i top. Kastrupgård – med sine gamle træer, skulpturer og grønne omgivelser – ligger lige rundt om hjørnet, og vandet er kun en kort gåtur væk. Samtidig bor du tæt på alt det praktiske: indkøb, skole, daginstitutioner og metrostation – kun 5 minutters gang fra hoveddøren.
Et hus som dette ser man sjældent – en perfekt kombination af klassisk 60’er-arkitektur, moderne komfort og kreativt håndværk. Et hjem, der skal opleves!











